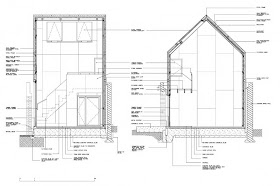
Сегодняшний дом мы посчитали крайне удачным предметом интеграции в архитектуре. Идея и исполнение покорили деликатностью и изяществом исполнения. На участке находилась полуразрушенная кирпичная голубятня XIX века, которую не стали сносить. Внутрь старых стен при помощи крана поместили цельную конструкцию нового дома из кортеновской стали. Это такие ржавые листы, специфика которых состоит в том, что, раз заржавев, они навсегда сохраняют благородно-коричневый цвет. Такова особенность окисной пленки стали, которая не размывается водой. 
/
We believe that today's house is a well-done example of architectural integration. The idea and realisation of this project have won us with it's tact and graceful implemetation. There was an old 19th century dovecote at the site that was left undestroyed. The new house's body made of corten steel was put inside the old building with a crane. The peculiarity of corten steel is that once rusted it keeps noble brown colour forever. It is caused by a waterproof oxide layer on the surface of that kind of metal.
Haworth Tompkins













